Leute das ist ein Witz! Einfach mal bissl nachdenken, dann sollte es doch Klick machen!

Der kleine Tuning Fragen Thread
-
-
Bei Essen und Bier hört der Spaß auf!😂
Ne aber mal im Ernst, die Seite ist nicht wirklich nutzbar, mein Kundenkonto ist auch auf einmal wech😅 -
-
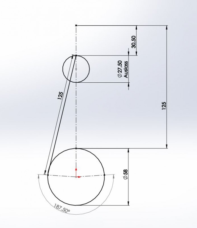
Die Schrägstellung des Pleuels spielt da auch mit rein. Dadurch ist die Umrechnung von Kolbenhub in Kurbelwinkel etwas komplizierter.
Hier mal gezeigt am Beispiel der ETZ 150:Die 58 sind der Hub.
Die 125 sind die Pleuellänge.
Die Oberkante des Maßes 30,50 ist der OT.Die Auslasssteuerzeit beträgt 187,50 Grad.
Trotzdem ist der Auslass bei weniger als 50% des Hubes offen (27,50 / 30,50). -
180° beschreiben eine halbe Kurbelwellenumdrehung- zwischen UT und OT.[emoji4]
Eine ASZ wird anders berechnet!
Mit ein wenig suche findest dazu viele Informationen im Netz.
Du kannst dem Rechner da vertrauen, wenn du plausible Werte eingegeben hast.Gesendet von meinem SM-J710F mit Tapatalk
-
Kein linearer Zusammenhang, sondern Sinus, daher sind hub und kurbelwinkel nicht als Verhältnisgleichung überführbar.
-
Moino, hab vor ein 63er auf 44hub um zu rüsten. Jetz war dazu mein gedanke, damit die kanäle ohne geoße arbeit passen, ein 90er pleul zu benutzen und den zylinderfuß um 3mm abzudrehn.
Lieg ich da richtig oder hab ich ein denkfehler?
-
Kolben muss vermutlich überlaufen, damit die Steuerzeiten passen. Somit einfach das 95er weiter benutzen und den Zylinder so lassen.. Ggf. Unterlegen.
-
Moin zusammen,
Hab mal ne Frage, hatte mir n DZM Set besorgt, nun ist die Aufnahme für das Schraubenrad im Kupplungsdeckel recht "großzügig" ausgelegt, es geht sehr leicht zu drehen, könnte das zuviel Spiel an der unteren Aufnahme zu Problemen führen?
Gruß
-
Hallo,
Welche Speichenlänge benötige ich für ein Vorderrad mit den Maßen 1,6x19 ?
Achtung Verwendung von Trommelbremse. Keine Scheibenbremsnabe. -
Sollten 164mm sein.
-
Wer kennt MS industries und dessen Arbeit? Schönes Weihnachtsfest gewünscht🤙
-
Uuuups, verwechselt
-
Moin was für reifen in Richtung mx wären denn für ein Wald und Wiesen Moped empfehlenswert? Vorne soll 16" bleiben und hinten nicht gar zu klobig
-
Moin was für reifen in Richtung mx wären denn für ein Wald und Wiesen Moped empfehlenswert? Vorne soll 16" bleiben und hinten nicht gar zu klobigWir sind beim Rennen oft vorne den Heidenauer K46 und Hinten drauf einen Vee Rubber Geländereifen gefahren zwecks Reglement beides 16".
Allerdings fährt sich 17/16 oder 19/16 wesentlich besser im Gelände.Für 19/16 gibts auch viel bessere Reifen. Dummerweise gibt es keine reinen 16" Vorderreifen...
-
Ich fahre bei meinem Waldmoped vorne Heidenau K52 und hinten Mefo MFC9
-
Keine Frage, aber ein neues Produkt:
https://langtuning.de/Zylinderkit-LT…t-1-Ring-KolbenIm Vergleich zum 60Reso bei gleichen Anbauteilen kein großer Unterschied mehr.
Sehr interessant muss ich sagen.mfg
-
Ca 1ps und 1nm weniger bei 400rpm weniger für 80€ (im LT Shop) mehr.
Da kommt es auf den Einsatzzweck an. Mit dem Reso 60er hat man mehr möglichkeiten im Setup, der ST bietet halt maximale Unauffälligkeit. Wenn du 80 vor der Zivilstreife fährst nützt dir alles nix [emoji28]
-
https://www.instagram.com/p/CJyg7pPJ087/
ZT Tuning gibt ganz Gas.
-
Für die "Insta-Muffel" (mich eingeschlossen)
-
Jetzt mitmachen!
Sie haben noch kein Benutzerkonto auf unserer Seite? Registrieren Sie sich kostenlos und nehmen Sie an unserer Community teil!